
Polizeibarkasse Otto Lauffer M1:20 Stand: 24.10.2023
Dieses Modell ist seit 4-2022 fertiggestellt!
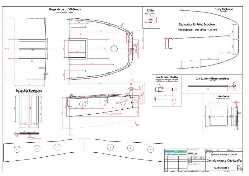
Hier mein feriggestelltes Projekt, die Polizeibarkasse Otto Lauffer die seit ende 2022 fertig ist. Habe mir den Plan, 2 Blätter in A0, vom VTH-Verlag gekauft, aber so wie der gemacht ist habe ich ihn erst mal so gezeichnet das man auch eine richtige Vorlage hat zum bauen, somit ergeben es 2 Pläne in A0, 1 Plan A1 sowie 6 Pläne in A2. Ich habe im Juni/Juli 2021 meinen Urlaub mit meiner Frau im Alten Land bei Hamburg verbracht, wollte das Original im Museumshafen Oevelgönne besichtigen und Fotografieren und wenn möglich Vermessen. Leider war die Otto Lauffer in der Werft nach aussage der freundichen Dame vom Vereinskios, jetzt habe ich den Verein angschrieben, auf anraten der freundlichen Dame und hoffe das Sie mir weiterhelfen können.
Am 6.7. und 11.7.21 habe ich schon Antwort vom Museumsverein Oevelgönne vom Obmann der Otto Lauffer bekommen, der mir Maße und Bilder übermittelt hatte, hierfür sage ich nochmals DANKE. Vielleicht bekomme ich noch Bilder von der Innenaustattung des Führerstands im August 21, wenn die Otto Lauffer wieder im Museumshafen steht, denm ich komme erst evtl. im nächsten Jahr Juni dort wieder hin, wenn es mir die Gesundheit erlaubt.
Die vordere Kajüte ist im 3D-Druck hergestellt. Die Achterkajütte ist mit Gardinen, 2 Kristalllampen, Ordner, A4 Blätter und weitere Details ausgestattet. Die Figuren im M 1:20 wurden auch im 3D-Druck erstellt und Grundiert sowie angemalt.
Text und Bildmaterial Museumshafen Övelgönne e.V.
Mittlerweile ist das Modell zu 100 % fertig und ist unverkäuflich.
Die 9 Pläne sind jetzt zu 100% fertig (19.09.22) und kann als PDF- oder DXF-Datei, sowie alle STL-Dateien für den 3D-Druck, Sounddateien sowie das gesamte Bildmaterial, auf CD oder USB zum Selbstkostenpreis erworben werden (DVD-Hülle mit CD/USB Stick, Liste aller 3D-Druckteile und Porto und ein kleiner Zeitaufwand muss bezahlt werden ca. 40 € innerhalb Deutschland, Ausland + Porto, ca. 45 €).
















































































